Direkt zum Seiteninhalt

Nofallpraxis Grenchen - Marcel Baechler - Innenarchitektur, Architektur & Praxisplanung

Notfallpraxis Grenchen  - Walk-in

Auftraggeber: Gruppenpraxis Grenchen AG
Leitung: Dr. med. Raphaël Tièche
Realisierung: 2023
Auftragsart: Direktauftrag

Standort: im Ärztezentrum Grenchen, EG

Innenarchitektur: Marcel Baechler, Innenarchitekt vsi.asai.
Mitarbeit: Noëlle Baechler, Martina Hofer, Simone Schnee
Bauleitung:
Marcel Baechler, Innenarchitekt vsi.asai.

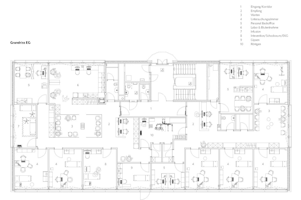
Wir erhielten den Auftrag im Erdgeschoss des neuen Ärztezentrum Grenchen eine Notfallpraxis zu realisieren.
In diesem Projekt waren wir für die gesamte Entwurfs-, Ausführungs-, Sanitär- und Elektroplanung mit Bauleitung verantwortlich.

In der Planung der Notfallpraxis orientierten wir uns am Konzept des 1. Obergeschoss weil diese Räume durch das selbe Personal betrieben wird. Auch hier war es uns wichtig, eine  gemütliche und einladende Umgebung zu schaffen, in der sich die Mitarbeiter:innen und Patienten wohl und sicher fühlen. Wir beachten in der Planung den Einsatz von gutem LED Licht um eine angenehme und  einladende Umgebung zu schaffen. Die Sitzgelegenheiten sind bequeme und ausreichend  dimensioniert so dass die Patienten im separaten Bereich für die Wartezeit entspannen können. Im weiteren spielen wir leise und  beruhigende Musik im Hintergrund ab, um eine entspannte Atmosphäre zu  schaffen. In den Untersuchungszimmer hohlen wir die Natur durch die Wandtapeten in die Räume. Das Labor im Notfall ist ein zentraler Ort im Erdgeschoss. Sämtliche Praxen im neuen Ärztezentrum Grenchen können Ihre Blutanalysen über einen internen kleinen Warenlift an das Labor senden. Im Erdgeschoss ist ein grosses Röntgen einplant wo von beiden Praxen im EG wie auch vom 1. OG genutzt wird.

Im Erdgeschoss war für uns Innenarchitekten die Herausforderung der beiden neuen Lifte. Im einen der kleine Warenlift für die Blutröhrchen und im andere der die Warenlifttürme für die Medikamentausgabe im EG wie auch im 1. OG. Die grosse Herausforderung bestand im Brandschutz der Lifte, weil beide im UG stationiert sind und durch zwei 30cm Betondecken fahren.

Visualisierung | Realitätsfoto (Schieber nach Links und Rechts bewegen)
Vor- | Nachher (Schieber nach Links und Rechts bewegen)
Line
Zurück zum Seiteninhalt