Direkt zum Seiteninhalt

OCCO Zahnarztpraxis für Oralchirurgie, Biel/Bienne - Marcel Baechler - Innenarchitektur, Architektur & Praxisplanung

OCCO Zahnarztpraxis für Oralchirurgie, Biel/Bienne

Auftraggeber: Dres. med. dent. Odette Engel Brügger & Julien Ducommun
Realisierung: 2023
Auftragsart: Direktauftrag

Innenarchitektur: Marcel Baechler, Innenarchitekt vsi.asai.
Bauleitung: Marcel Baechler, Innenarchitekt vsi.asai.


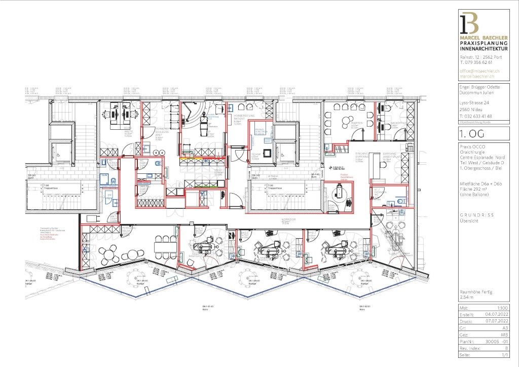
Wir erhielten den Auftrag im 1. Obergeschoss die neue Zahnarztpraxis für Oralchirurgie zu planen.
In diesem Projekt waren wir für die gesamte Entwurfs-, Ausführungs-, Sanitär-, Dental- und Elektroplanung mit Bauleitung verantwortlich.

Die beiden Zahnärzte hatten ursprünglich den Wunsch, eine Praxis in einem alten Fabrikgebäude zu eröffnen.  Dieses Unterfangen erwies sich als schwierig. Wir fanden über mehrere Jahre hinweg nie das passende Lokal. An der Esplanade in Biel entstand ein Neubau für Gewerbe und Wohnen. Wir nutzen diese Gelegenheit, um die Vorteile des Neubaus zu nutzen und die Dental Leitungen direkt im Beton einlegen zu können. Wir haben die Idee der alten Fabrik nie aus den Augen verloren und so entstand die Idee vom Verblender in der Innenzone und dem eingefärbten anthrazit farbigen Unterlagsboden. Wir haben dies mit sechs Millimeter Keramikplatten als Abdeckungen für die Dental- und Sterilisationsmittel kombiniert. So entstand eine eigenwillige Gestaltung mit viel Atmosphäre und den Mut für eine neuartige Gestaltung in einer Zahnarztpraxis in Kombination mit viel Glasflächen.

Kleine Anekdote: Der Stuhl im Warten und Aufenthaltsraum ist von Wilkhahn und heisst "OCCO". Der Stuhl war das erste Produkt, das im Projekt verabschiedet und genehmigt wurde.

Visualisierung | Realitätsfoto (Schieber nach Links und Rechts bewegen)
Line
Zurück zum Seiteninhalt